Description
- MID TERRACED HOME
- OPEN PLAN LOUNGE/DINING AREA
- FITTED KITCHEN
- UTILTIY ROOM
- DOWNSTAIRS BATHROOM
- THREE DOUBLE BEDROOMS
- OFF ROAD PARKING
- CLOSE TO LOCAL AMENITIES
- GREAT TRANSPORT LINKS
- VIEWING ADVISED
Located on Newbiggin Road in the charming town of Ashington, this delightful mid-terraced home offers a perfect blend of comfort and practicality. With three generously sized double bedrooms, this property is ideal for families or those seeking extra space. Upon entering, you are welcomed into an open plan lounge and dining area, creating a warm and inviting atmosphere for both relaxation and entertaining. The layout is designed to maximise space and light, making it a perfect setting for family gatherings or quiet evenings in. The property also features a separate utility room, providing additional convenience for laundry and storage needs. The bathroom is conveniently located on the ground floor, ensuring easy access for all residents and guests alike. For those with vehicles, there is parking available for one car, adding to the practicality of this lovely home. Situated in a well-connected area, this property is close to local amenities, schools, and parks, making it an excellent choice for families or anyone looking to enjoy the vibrant community of Ashington. This terraced house is not just a place to live; it is a place to call home. Don’t miss the opportunity to make this charming property your own.
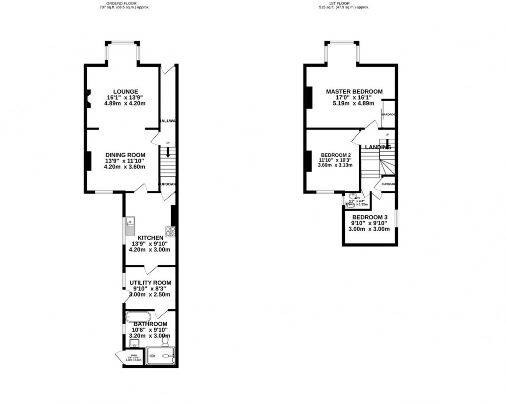
ENTRANCE HALL (4.93m x 0.94m)
LOUNGE (4.98m x 4.11m)
DINING (3.63m x 4.17m)
KITCHEN (4.09m x 2.95m)
UTILITY (2.97m x 2.44m)
BATHROOM (3.12m x 2.97m)
STAIRWAY/LANDING
BEDROOM ONE (5.46m x 5.00m)
BEDROOM TWO (3.66m x 3.28m)
BEDROOM THREE (2.97m x 2.87m)
W.C (1.75m x 1.37m)
EXTERNAL
DISCLAIMER SALES
The particulars on these properties are set out as a general guidance for intended purchasers or tenants, and do not constitute part of an offer or contract. The Agent has not tested any apparatus, equipment, fixtures and fittings or services and so cannot verify that they are in working order or fit for the purpose. A Buyer is advised to obtain verification from their Solicitor or Surveyor. References to the Tenure of a Property are based on information supplied by the Seller. The Agent has not had sight of the title documents. A Buyer is advised to obtain verification from their Solicitor. All dimensions, descriptions and distances, reference to condition and necessary permissions for use and occupation, and other details are given without responsibility. Any intending purchasers or tenants should not rely on them as statements of fact, but must satisfy themselves by inspection or otherwise as to the correctness of each of them. Items shown in photographs are NOT included unless specifically mentioned within the sales particulars. They may however be available by separate negotiation. Measurements have been taken using a laser distance meter and may be subject to a margin of error. For further information see the Consumer Protection from Unfair Trading Regulations.
Floorplan
EPC
To discuss this property call us:
Market your property
with Carousel Estate Agents
Book a market appraisal for your property today. Our virtual options are still available if you prefer.
